
Подводный мир остаётся сегодня таинственной и во многом неизведанной стихией. Человек созжает разнообразные технические средства, чтобы стать сильнее стихии, преодолеть давление и сопротивление воды. Важнейшая задача при этом – обеспечить деятельность на глубине необходимой энергией.
Компания «Colorado» предлагает ряд технических средств для доставки гидравлической энергии на глубины вплоть до 450 метров. Представленные технические средства являются лишь небольшим примером их разнообразия.
Дальнейшее развитие средств доставки энергии под воду направлено на повышение производительности подводно-технических работ, повышение их безопасности и экологичности, минимизацию участия человека.

Назначение:
Доставка на глубину гидравлической станции для обеспечения работы гидравлического инструсмента.
Состав:
• Спускоподъёмное устройство
• Электрооборудование и система управления
• Подводная гидравлическая станция
Назначение:
Откачка больших масс воды из затопленных отсеков кораблей и проведение подводно-технических работ при строительстве и эксплуатации объектов.
Состав:
• Гидравлическая станция с дизельным двигателем
• Вьюшка с гидравлическим приводом
• Погружная помпа
Работоспособность при воздействии внешних факторов:
• температура окружающего воздуха от -20°С до 35°С
• температура морской воды от -2°С до 35°С
• температура пресной воды от 0°С до 35°С
• влажность для надводного оборудования 98%
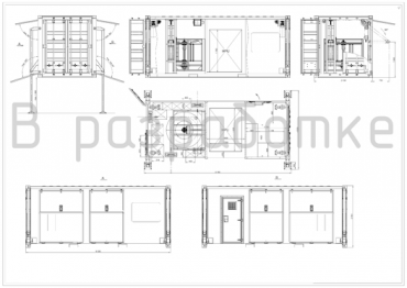
Назначение:
Перевозка надводной гидравлической станции НГС-60М для обеспечения откачки больших масс воды из затопленных отсеков кораблей и проведение подводно-технических работ при строительстве и эксплуатации объектов. Также комплекс оснащен комнатой для проведения мелкого ремонта и обслуживания водолазной оснастки.
Состав:
• 20ти фунтовый морской контейнер (стандарт)
• Гидравлическая станция с дизельным двигателем
• Вьюшка с гидравлическим приводом
• Погружная помпа
Работоспособность при воздействии внешних факторов:
• температура окружающего воздуха от -20°С до 40°С
• температура морской воды от -2°С до 35°С
• температура пресной воды от 0°С до 35°С
• влажность для надводного оборудования 98%
Назначение:
Перевозка надводной гидравлической станции НГС-60М для обеспечения откачки больших масс воды из затопленных отсеков кораблей и проведение подводно-технических работ при строительстве и эксплуатации объектов. Отличительной чертой является компактность.
Состав:
• 10ти фунтовый морской контейнер (стандарт)
• Гидравлическая станция с дизельным двигателем
• Вьюшка с гидравлическим приводом
• Погружная помпа
Работоспособность при воздействии внешних факторов:
• температура окружающего воздуха от -20°С до 40°С
• температура морской воды от -2°С до 35°С
• температура пресной воды от 0°С до 35°С
• влажность для надводного оборудования 98%